门禁就是出入口控制,管理什么人什么时间可以进出哪些门,并可自动生成各种报表,提供事后的记录信息等。当出入通道安装了门禁设备后,当人需要通行时,就要进行适当级别的权限鉴别,以区分是否能通行。一般可以通过卡片、指纹、虹膜(眼睛)来代表通行人员的权限,并对通行人员的身份进行识别。
成都盛海瀚洋科技有限公司 网址:www.cdshhy.com 联系人:陈海洋 电话:13072870093
门禁系统分类:
1、不联网门禁:
一台主机对应控制管理一个门,直接通过控制器进行控制,不能使用电脑软件进行控制。
优点:价格便宜,安装维护简单。
缺点:没有出入记录。
适用范围:不适合门数量在5套以上,人数大于50或人员流动大,人员入职和离职频繁的地方。2. 485联网门禁:
2、485联网门禁
直接使用电脑软件进行管理控制,包括卡和事件的控制。这种门禁可以和电脑进行通讯。
优点:控制集中、管理方便、可以查看记录、可以对记录进行分析处理以用作他用。培训简单,可以进行考勤等增值服务。
缺点:价格较高、安装维护难度比较大。
适用范围:适合门数多、人数多、人员流动频繁的地方。
3、TCP/IP门禁:
也称以太网联网门禁,通过网络线把电脑和控制器进行联网,是一种可以联网的门禁系统。
优点:除具有485联网门禁的全部优点以外,还具有速度更快,安装更简便,联网数量更大,可跨地域或跨城联网等优点。
缺点:价格高,需要有专业的网络知识。
适用范围:适合安装在大项目、人数量多、对速度有要求、跨地域的工程中。
4、指纹门禁系统:
通过指纹、人脸识别、虹膜、静脉识别代替卡进行管理的门禁。
优点:具有和485联网门禁相同的特性,但安全性更高。
缺点:可管理的人数较少,通过速度慢。
门禁系统的安装相对复杂,下面来看看各类型的门禁系统安装大样图
1、门禁安装大样图


2、单门门禁设备安装A/B视图

3、双门门禁设备安装A/B视图

4、电插锁安装大样图
门禁设备安装三视图

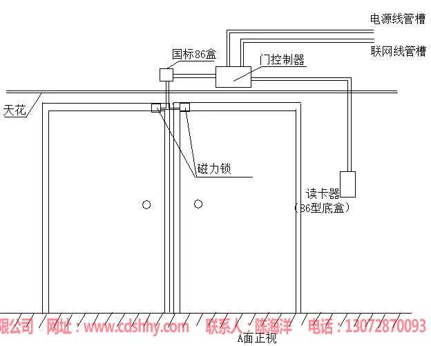
5、磁力锁安装大样图


单门磁力锁安装大样图

双门磁力锁安装大样图
6、配套辅助支架安装
根据不同形式的门框选配需要的辅助支架